Просторен тристаен апартамент в нова сграда в Несебър – съвременен комфорт и удобство край морето

 Несебър, Bendida Residence

123 221 €

85м21450 €/м2

3 стаи, 2 спални 1 тераса, 1 баня
Построен 2027
Необзаведен
2 от 6
500 m
Информация за имота
  • ID:38772
  • град: Несебър
  • Комплекс:Bendida Residence
  • Построен:2027
  • Обзаведен:Необзаведен
  • Разстояние до море:500 m
  • Гледка:Град
  • Сезонност:целогодишно използване
  • Етаж:2 от 6
  • Конструкция:Тухла
  • Отопление:Електричество
  • Охрана:Не
  • Асансьор:Да
Описание

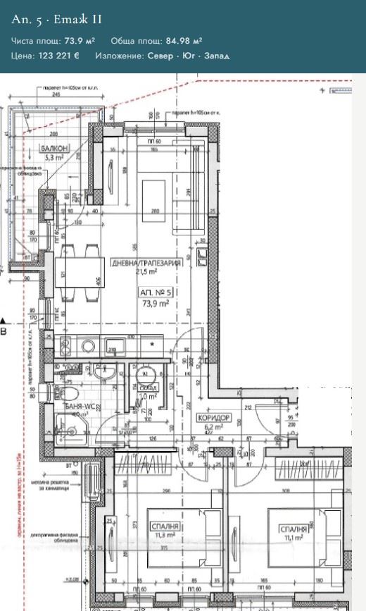
Представяме Ви тристаен апартамент в строеж в съвременна жилищна сграда в Несебър – място, където комфортът, удобството и морската атмосфера се срещат. С площ от 84,98 м², апартаментът се намира на втори етаж и се предава по БДС – на тапа, давайки Ви възможност да го превърнете в точно такъв дом, какъвто сте си представяли. Разпределението включва просторно антре, светла дневна с кухня, две уютни спални, баня, мокро помещение и балкон, идеални за семеен живот или за настаняване на гости.

Локацията е несравнима – сградата се намира в непосредствена близост до T Market, спирки на градски транспорт, магазини и заведения, като предлага изключително удобен достъп до всички градски удобства. Любителите на морето ще оценят близостта до плажовете: северният плаж е само две минути с кола, южният плаж – пет минути, а плажът на Слънчев бряг е само десет минути пеша – идеално за сутрешни разходки, следобедно слънчеви бани или вечери край морето.

Жилището е проектирано с мисъл за спокойствие и независимост – всеки апартамент разполага с отделни партиди за ток и вода, а сградата е без такса поддръжка, което гарантира ниски експлоатационни разходи. За удобството на собствениците са предвидени 12 гаража и 32 паркоместа, осигуряващи сигурност и комфорт, които се продават на цени от 12 500 до 25 000 евро.

Това е не просто апартамент, а възможност за качествен живот край морето и стабилна инвестиция. Благодарение на своята функционалност, отлична локация и близост до плажовете, имотът е перфектен за постоянно живеене, за летни почивки или за отдаване под наем с висока доходност.

Акт 16 (завършване) се очаква през май 2027 г.

Оферта № 38772

Агенцията съдейства за отпускане на банков кредит

Разположение на картата