Простор, светлина и комфорт – тристаен апартамент с две изложения в нова сграда в Меден рудник, зона Б

 Меден рудник - зона Б

92 150 €

97м2950 €/м2

3 стаи, 2 спални 2 тераси, 1 баня
Построен 2029
Необзаведен
1 от 6
3 км
Информация за имота
  • ID:38868
  • град: Бургас
  • Построен:2029
  • Обзаведен:Необзаведен
  • Разстояние до море:3 км
  • Гледка:Град
  • Сезонност:целогодишно използване
  • Етаж:1 от 6
  • Конструкция:Тухла
  • Отопление:Електричество
  • Охрана:Не
  • Асансьор:Да
Описание

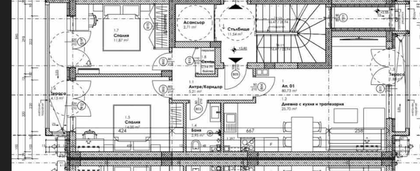
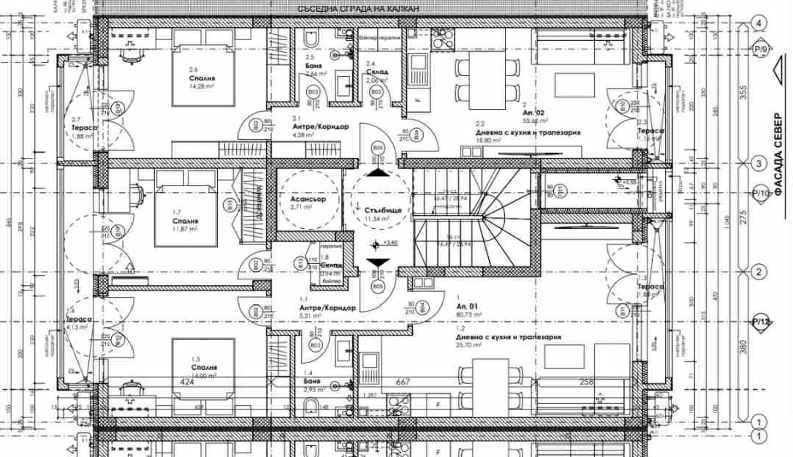
Предлагаме ви просторен тристаен апартамент с площ от 97 м², разположен на първи жилищен етаж в модерна новопостроена сграда в предпочитаната зона Б на ж.к. Меден рудник. Имотът се отличава с две изложения, които осигуряват отлична естествена светлина през целия ден и създават приятно усещане за простор и уют.

Жилището е с изключително функционално разпределение, съобразено с нуждите на съвременното домакинство. Състои се от входно антре, просторна дневна с кухненска зона и излаз на тераса, идеална за отдих, две самостоятелни спални, всяка с достъп до втора тераса, баня с тоалетна и отделно складово помещение, което добавя допълнително удобство. Разпределението позволява лесно и практично обзавеждане според индивидуалния вкус на бъдещите собственици.

Апартаментът се продава по БДС (на тапа), което дава възможност да бъде завършен изцяло по ваш проект и стил – предимство за всеки, който търси персонализиран дом без компромиси.

Сградата е малка и бутикова, с общо 11 апартамента, разположени на шест етажа, което гарантира по-спокойна и приятна жилищна среда. Осигурен е асансьор, а за удобството на живущите са предвидени открити и подземни паркоместа, както и два гаража, които могат да бъдат закупени допълнително на цени от 10 000 до 45 000 евро.

Локацията е отлично подбрана – районът предлага развита инфраструктура с магазини, детски градини и училища в близост, което прави имота изключително подходящ за семейства, търсещи комфорт и удобство в ежедневието.

Този апартамент е перфектна комбинация от пространство, функционалност и модерно строителство, предоставящ отлична възможност да създадете своя мечтан дом в развиващ се и предпочитан район на града.

Оферта № 38868

Агенцията съдейства за отпускане на банков кредит

Разположение на картата