Пловдив: тристаен апартамент в строеж, с възможност за разсрочено плащане

 Пловдив

123 165 €

105м21173 €/м2

3 стаи, 2 спални 1 тераса, 2 бани
Построен 2028
Необзаведен
6 от 10
Информация за имота
  • ID:37444
  • град: Тракия
  • Построен:2028
  • Обзаведен:Необзаведен
  • Гледка:Град
  • Сезонност:целогодишно използване
  • Етаж:6 от 10
  • Конструкция:Тухла
  • Отопление:Електричество
  • Охрана:Не
  • Асансьор:Да
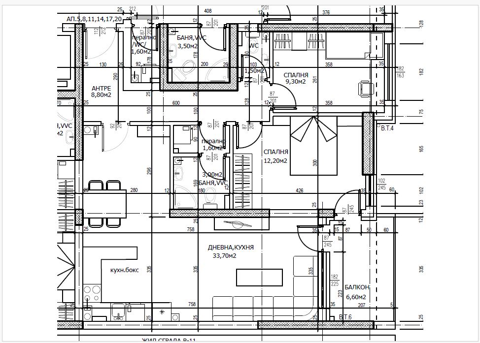
Описание

Представяме ви възможността да се сдобиете с тристаен апартамент в едно от най-бързо развиващите се и търсени места в Пловдив - жк. Тракия. С площ от 105 м², този новостроящ се апартамент ще ви предложи комфорт, съвременен дизайн и всички удобства на модерната жилищна сграда.

Имотът е част от сграда, проектирана с внимание към детайла и висок стандарт на строителството, осигурено от утвърдена компания с редица успешни проекти зад гърба си. Завършването на обекта с акт 16 е планирано за декември 2028 година. Наличието на асансьор прави достъпът до жилището удобен и бърз.

Апартаментът разполага с:

- Просторна дневна, която осигурява пространство за семейство.

- Две спални, идеални за семейства или за създаване на работно място у дома.

- Балкон, който предлага място за отдих на открито.

- Баня с тоалетна.

-Отделна тоалетна

- Мокро помещение.

Плащането за имота е гъвкаво и съобразено с вашите възможности: само 10% при подписване на предварителен договор, 40% при достигане на акт 14 и останалите 50% при завършване с акт 16.

Този апартамент е не само прекрасна възможност за закупуване на нов дом, но и добра инвестиция в бъдещето ви. За повече информация и организиране на оглед, не се колебайте да се свържете с нас.

Оферта № 37444

Агенцията съдейства за отпускане на банков кредит

Разположение на картата