Панорамен двустаен на последен етаж до плажа в Сарафово – без такса поддръжка

 Сарафово, Skarabey Puzzle

92 032 €

74м21250 €/м2

2 стаи, 1 спалня 1 тераса, 1 баня
Построен 2027
Необзаведен
5 от 5
400 m
Информация за имота
  • ID:37780
  • град: Бургас
  • Комплекс:Skarabey Puzzle
  • Построен:2027
  • Обзаведен:Необзаведен
  • Разстояние до море:400 m
  • Гледка:Град
  • Сезонност:целогодишно използване
  • Етаж:5 от 5
  • Конструкция:Тухла
  • Отопление:Електричество
  • Охрана:Не
  • Асансьор:Да
Описание

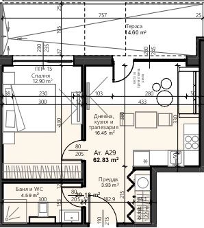
Представяме двустаен апартамент в новострояща се жилищна сграда в едно от най-спокойните и предпочитани места на Бургас – кв. Сарафово. Локацията съчетава тишина и уют с отлична свързаност – само на няколко минути пеша от плажната ивица, с удобен достъп до летището и центъра на града. Районът предлага подредена инфраструктура и всички ежедневни удобства на една ръка разстояние. Имотът е с обща площ 73,63 кв.м, разположен на 5-ти, последен етаж, със западно изложение – уютна следобедна светлина и гледки към залеза. Функционалното разпределение включва светла дневна с кухненска зона, една самостоятелна спалня, баня с тоалетна и един удобен балкон. Височините и светлите отвори създават усещане за простор и комфорт, а последният етаж гарантира допълнителна уединеност. В сградата има асансьор.

Жилището се издава по БДС – на шпакловка и замазка, което Ви дава свободата да изберете индивидуален стил на довършване. Проектът е изпълнен със съвременни технологии и висок клас материали, с акцент върху енергийната ефективност и дългосрочната стойност на инвестицията. Без такса поддръжка – рядко срещано предимство за района. Сградата е проектирана на 5 етажа с функционално разпределени едностайни, двустайни и тристайни апартаменти. Комплексът е с два отделни входа с контролиран достъп, асансьори, открити паркоместа и подземни гаражи. Има възможност за закупуване на гараж и/или паркомясто. Локацията е идеална както за целогодишно обитаване, така и за ваканционно ползване или отдаване под наем – близост до морето, бърза връзка с ключови точки на града и приятна, поддържана среда.

Старт на строителството: май 2025 г. Очакван Акт 16: юни 2027 г.

Свържете се с нас за допълнителна информация, план на имота и консултация на място. Това е чудесна възможност да осигурите дом до морето в престижен район на Бургас – със спокойствието, което търсите, и потенциала, който заслужавате.

Оферта № 37780

Агенцията съдейства за отпускане на банков кредит

Разположение на картата