Нов двустаен апартамент в Сарафово – простор, удобство и близост до морето

 Сарафово

88 000 €

71м21241 €/м2

2 стаи, 1 спалня 1 тераса, 1 баня
Построен 2025
Необзаведен
0 от 4
300 m
Информация за имота
  • ID:38614
  • град: Бургас
  • Построен:2025
  • Обзаведен:Необзаведен
  • Разстояние до море:300 m
  • Гледка:Град
  • Сезонност:целогодишно използване
  • Етаж:0 от 4
  • Конструкция:Тухла
  • Отопление:Електричество
  • Охрана:Не
  • Асансьор:Да
Описание

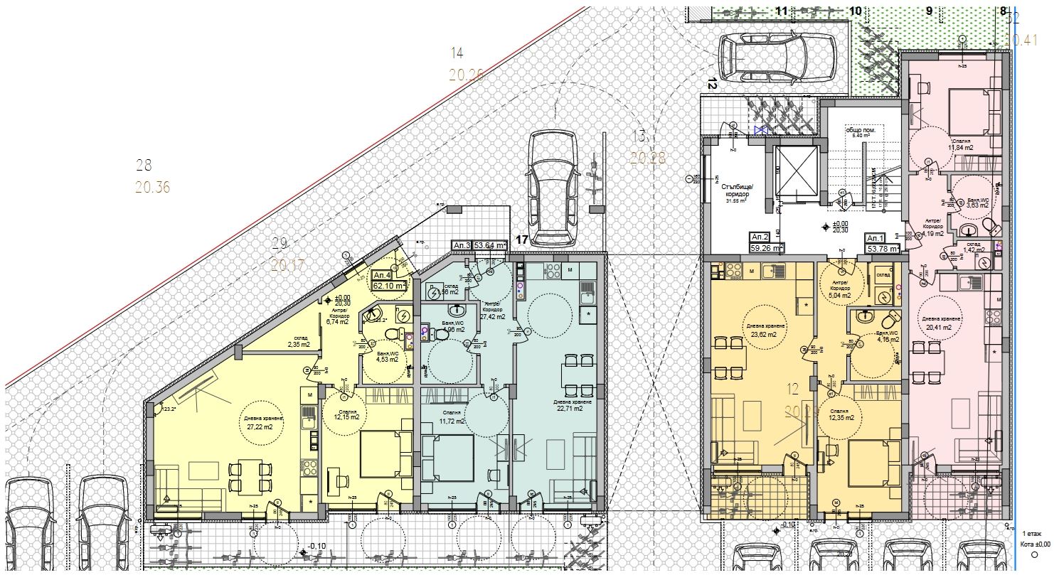
Представяме ви изключителен двустаен апартамент с площ 70,93 м², разположен на партерен етаж на нова жилищна сграда. Имотът предлага простор и функционалност, като осигурява лесен достъп до жилището и комфортно разпределение на помещенията. Апартаментът е част от модерна сграда с високо качество на строителство и без такса поддръжка, което го прави идеален както за лично ползване, така и като инвестиция.

Локацията на имота е само на 300 метра от плажа и на кратка разходка от центъра на Сарафово, което съчетава спокойствие и удобство. Жителите ще могат да се наслаждават на морските разходки, близките кафенета, ресторанти и всички удобства на курортното селище, без да се налага използването на автомобил.

Околността впечатлява с добре поддържани нови улици, улично осветление и близкия парк с детски кът, който се намира само на 150 метра от сградата. Това предоставя възможност за разходки, спорт и забавление на открито за деца и възрастни, като същевременно осигурява приятна и спокойна атмосфера.

Апартаментът представлява идеален избор за семейства или за инвеститори, които търсят жилище с модерен дизайн, функционално разпределение, близост до морето и безгрижна поддръжка. Това е възможност да придобиете дом в Сарафово – спокойствие, комфорт и удобства в непосредствена близост до плажа и инфраструктурата на курорта.

Оферта № 38614

Агенцията съдейства за отпускане на банков кредит

Разположение на картата