Модерен двустаен до морето в Поморие – нова сграда, без такса поддръжка

 Поморие, Tuthon

84 093 €

67м21250 €/м2

2 стаи, 1 спалня 1 тераса, 1 баня
Построен 2028
Необзаведен
1 от 5
200 m
Информация за имота
  • ID:37760
  • град: Поморие
  • Комплекс:Tuthon
  • Построен:2028
  • Обзаведен:Необзаведен
  • Разстояние до море:200 m
  • Гледка:Град
  • Сезонност:целогодишно използване
  • Етаж:1 от 5
  • Конструкция:Тухла
  • Отопление:Електричество
  • Охрана:Не
  • Асансьор:Да
Описание

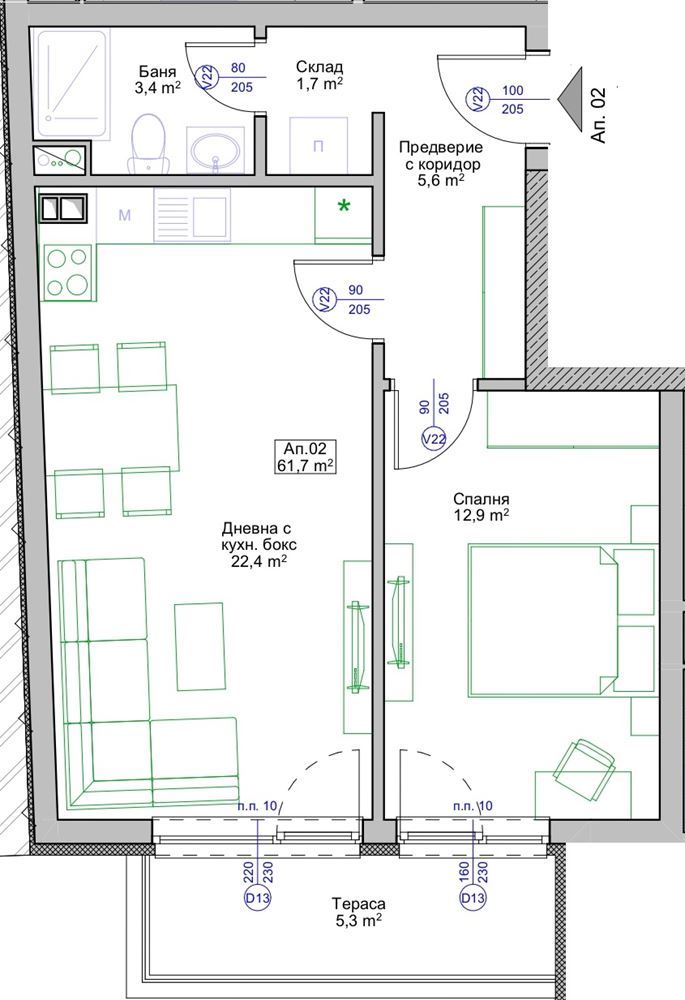
Представяме Ви двустаен апартамент в нов проект с модерна визия, разположен в един от най-предпочитаните райони на гр. Поморие – на минути от морската ивица и централната част на града. Жилището е с обща площ 67.27 м2, намира се на втори етаж в жилищна сграда с асансьор и се предлага без такса поддръжка – рядко срещано предимство за имот до морето. Стартът на строителството е планиран за октомври 2025 г., а въвеждането в експлоатация (Акт 16) – октомври 2027 г.

Локацията съчетава спокойствие и отлична градска инфраструктура. В близост ще откриете емблематичните лечебни кални бани, медицински центрове, плажната ивица, футболния стадион и центъра на Поморие, както и разнообразие от магазини, заведения и услуги, осигуряващи комфортно целогодишно обитаване.

Апартаментът впечатлява с функционално и удобно разпределение: антре/коридор, просторна дневна с кухненска зона, самостоятелна спалня, баня с тоалет, складово помещение и една тераса – идеално място за сутрешно кафе и вечерен отдих. Компактната и логична планировка осигурява усещане за простор и лесна организация на интериора. Жилището ще бъде издадено по БДС – по съвременни стандарти, с внимание към детайла и качеството на използваните материали, така че новите собственици да реализират своята индивидуална концепция за дизайн и обзавеждане. Сградата е проектирана с модерна архитектура и представителни общи части, а наличието на асансьор гарантира удобство в ежедневието.

Този имот е отличен избор както за постоянно живеене край морето, така и като ваканционен дом или инвестиция с потенциал за доход от наем през активния сезон, благодарение на локацията и липсата на такса поддръжка. За повече информация, план на имота и съдействие при оглед, свържете се с нас. Ще Ви предоставим детайли за проекта, сроковете и всички стъпки по покупката.

Оферта  № 37760

Агенцията съдейства за отпускане на банков кредит

Разположение на картата