Тристаен апартамент с гледка море на 100 метра от плажа

 Крайморие

230 120 €

158м21453 €/м2

3 стаи, 2 спални 2 тераси, 2 бани
Построен 2023
Необзаведен
5 от 5
с паркомясто
100 m
Информация за имота
  • ID:32053
  • град: Бургас
  • Построен:2023
  • Обзаведен:Необзаведен
  • Разстояние до море:100 m
  • Гледка:Море
  • Сезонност:целогодишно използване
  • Етаж:5 от 5
  • Конструкция:Тухла
  • Отопление:Електричество
  • Паркинг:с паркомясто
  • Охрана:Не
  • Асансьор:Да
Описание

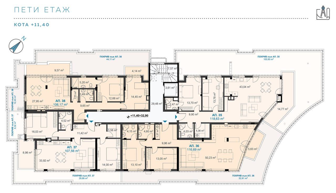
Тристаен апартамент с гледка море в нова жилищна сграда на 100 метра от морето в кв. Крайморие, гр. Бургас. Апартаментът е с площ 158,35 кв. м. на пети етаж и се състои от антре, хол с кухня, две спални, две бани с WC, килер и две тераси. Основни предимства на сградата са нейното разположение – на североизток граничи с булевард с ширина 34 метра, на югозапад с комплекс от еднофамилни къщи, отстоящи на 20 метра, на югоизток – улица с кръгово и пешеходен достъп до булеварда.

Висока енергийна ефективност, благодарение на фасадна система с топлоизолация Baumit/Ceresit с дебелина 10 cm, и 7-камерна PVC дограма с троен стъклопакет.

Тухлена зидария – Wienerberger Porotherm;

Фасадна система BAUMIT/CERЕSIT с топлоизолация 10 см.;

Входни блиндирани врати;

Дограма: седем камерен PVC профил, троен стъклопакет;

Подготовка за монтаж на климатици;

Подови плочи с дебелина 20 см

Под на терасите – гранитогрес

Асансьор: за 6 лица;

Издава се: на мазилка и замазка, без интериорни врати;

Общи части: луксозно изпълнени фоайета с настилка и стени от гранитогрес; стълбища и етажни площадки: настилка – гранитогрес; стени: гранитогрес цокъл и латекс;

Оферта 32053

Агенцията съдейства за отпускане на банков кредит!

Разположение на картата