Студио на 400 м от морето в нова жилищна сграда в Поморие

 Поморие, InterHomes I

ПРОДАДЕН

1 стая, 1 тераса 1 баня
Построен 2026
Необзаведен
2 от 5
400 m
Информация за имота
  • ID:37346
  • град: Поморие
  • Комплекс:InterHomes I
  • Построен:2026
  • Обзаведен:Необзаведен
  • Разстояние до море:400 m
  • Гледка:Град
  • Сезонност:целогодишно използване
  • Етаж:2 от 5
  • Конструкция:Тухла
  • Отопление:Електричество
  • Охрана:Да
  • Асансьор:Да
Описание

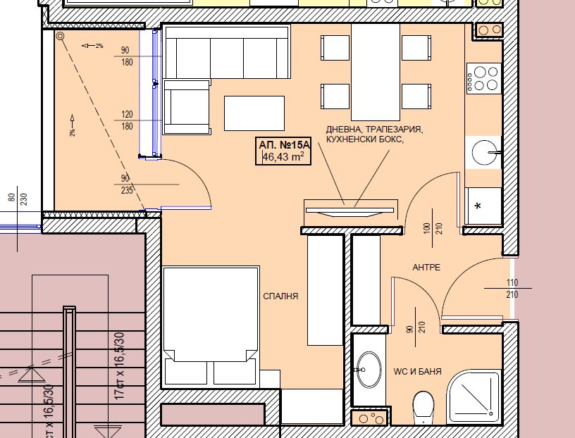
Продава се модерно студио в гр. Поморие, разположено в сграда на етап строителство, с Акт 14. Със своята отлична локация и модерен дизайн, този имот предлага идеален избор както за инвеститори, така и за семейства, които търсят сигурност и уют. Студиото се намира на втория жилищен етаж и е с обща площ от 55,31 кв.м. Функционалното разпределение на пространствата включва просторна стая, балкон и баня, като големи прозорци осигуряват обилно количество естествена светлина. Сградата е оборудвана с асансьор за максимално удобство на обитателите.

Локацията на имота е изключително удобна – в близост до центъра на гр. Поморие, само на няколко минути от красивия плаж, магазини, детска градина, Музея на солта, соленото езеро, болницата и балнео центъра. Това прави студиото не само чудесен дом за целогодишно живеене, но и отлична инвестиционна възможност с висок потенциал за отдаване под наем.

Гъвкавите условия на продажба и издаването на имота „до ключ“ са допълнително предимство, което осигурява лесно и бързо нанасяне. Не пропускайте възможността да се сдобиете с този изключителен имот! Свържете се с нас за повече информация и огледи.

Очакван Акт 16: март 2026 г.

Поддръжка - 150 евро на година

Оферта  № 37346

Агенцията съдейства за отпускане на банков кредит

Разположение на картата