Панорамен тристаен в Сарафово с морска гледка – последен етаж асансьор, без такса поддръжка

 Сарафово, Skarabey Puzzle

187 959 €

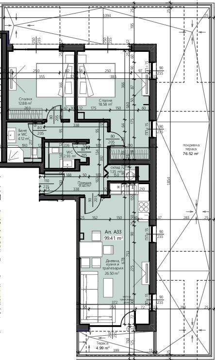
198м2950 €/м2

3 стаи, 2 спални 1 тераса, 2 бани
Построен 2027
Необзаведен
5 от 5
400 m
Информация за имота
  • ID:37781
  • град: Бургас
  • Комплекс:Skarabey Puzzle
  • Построен:2027
  • Обзаведен:Необзаведен
  • Разстояние до море:400 m
  • Гледка:Град
  • Сезонност:целогодишно използване
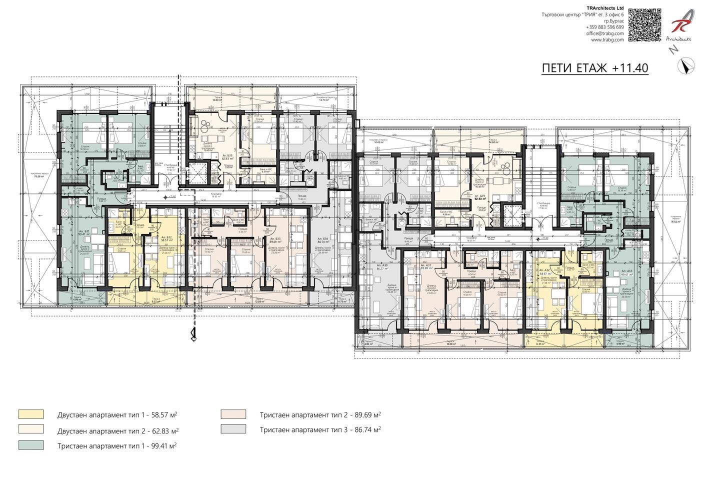
  • Етаж:5 от 5
  • Конструкция:Тухла
  • Отопление:Електричество
  • Охрана:Не
  • Асансьор:Да
Описание

Представяме ви изключително просторен тристаен апартамент с обща площ 197,85 кв.м, разположен на пети етаж в нова жилищна сграда в най-предпочитаната част на кв. Сарафово, Бургас. Жилището е с югоизточно изложение, което осигурява много естествена светлина и топлина през целия ден, а терасата разкрива панорамни гледки към града и морето. Разпределение: функционален и комфортен семеен план – антре/коридор, просторна дневна с кухня и място за трапезария, две самостоятелни спални, баня с тоалетна, отделна тоалетна, както и една тераса с впечатляваща гледка. Идеален дом за семейство или втори дом на морето, с възможност за гъвкаво обзавеждане според нуждите.

Състояние и качество: имотът се издава по БДС – на шпакловка и замазка, което позволява да реализирате свой индивидуален интериорен проект. Съвременно строителство с висок клас материали и акцент върху енергийната ефективност за по-ниски разходи и дългосрочен комфорт. Сградата е с асансьор и без такса поддръжка – рядко срещано предимство за ново строителство в близост до плажа. Локация: тих и спокоен участък на Сарафово, само на няколко минути пеша от плажната ивица. Мястото съчетава релакс и отлична свързаност – бърз и удобен достъп до Летище Бургас и центъра на града, развита инфраструктура, магазини, заведения и градски транспорт. Очакван Акт 16 – юни 2027 г.

Инвестиционен потенциал: имотът е изключително подходящ за инвестиция – комбинация от близост до морето и летището, голяма площ, панорамна тераса и без такса поддръжка. Високо търсене както за сезонно, така и за дългосрочно отдаване под наем, с отлична ликвидност на пазара в Сарафово. Този апартамент е рядко предложение за района – простор, светлина, гледка и разумна цена на кв.м в нова сграда. Свържете се с нас за оглед и допълнителна информация. Ще съдействаме на всяка стъпка – от избора и планирането на интериора до финализиране на сделката.

Оферта № 37781

Агенцията съдейства за отпускане на банков кредит

Разположение на картата