Ексклузивен тристаен апартамент на самостоятелен етаж в ж.к. „Зорница“ – простор, уединение и модерна визия

 Зорница, Zornitsa 3

258 808 €

324м2800 €/м2

3 стаи, 2 спални 1 тераса, 2 бани
Построен 2027
Необзаведен
5 от 5
2 км
Информация за имота
  • ID:38512
  • град: Бургас
  • Комплекс:Zornitsa 3
  • Построен:2027
  • Обзаведен:Необзаведен
  • Разстояние до море:2 км
  • Гледка:Град
  • Сезонност:целогодишно използване
  • Етаж:5 от 5
  • Конструкция:Тухла
  • Отопление:Електричество
  • Охрана:Не
  • Асансьор:Да
Описание

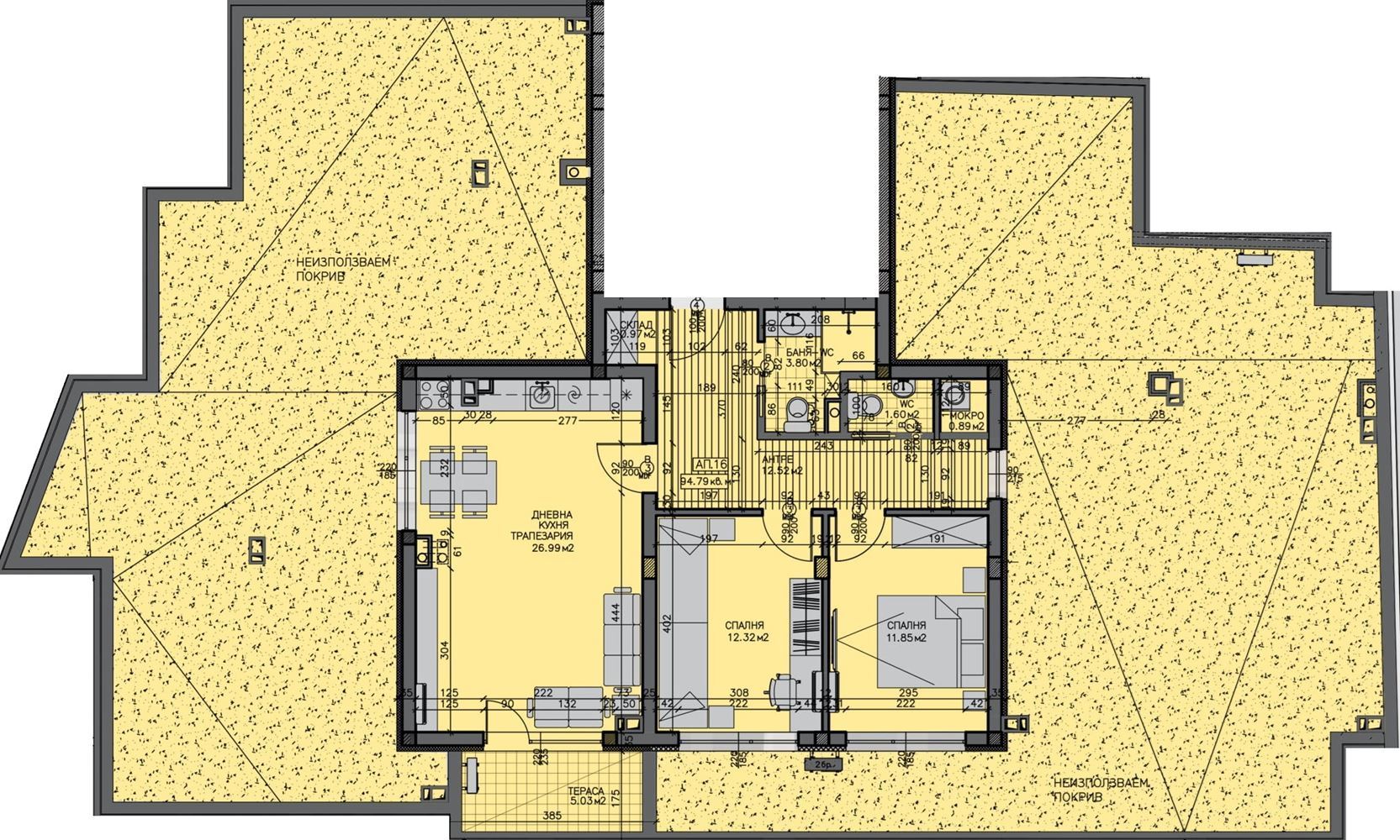
Представяме ви просторен тристаен апартамент с впечатляваща площ от 323.51 м², разположен на пети етаж в съвременна нова сграда с елегантна архитектура, високо качество на изпълнение и внимание към всеки детайл. На етажа се намира само този апартамент, което гарантира пълно уединение, тишина и комфорт – рядко срещано предимство в градска среда.

Жилището е с изложение запад, което осигурява приятна естествена светлина през втората половина на деня и уютна атмосфера вечер. Апартаментът се състои от антре, просторна дневна с кухня, две спални, баня с тоалетна, отделна тоалетна, мокро помещение, килер и балкон, като разпределението е проектирано с мисъл за максимална функционалност и удобство. Голямата площ предоставя отлични възможности за създаване на стилен и комфортен дом, съобразен с индивидуалните предпочитания на бъдещите собственици.

Имотът се намира в една от най-зелените и предпочитани зони на град Бургас – ж.к. „Зорница“, район, който предлага перфектен баланс между спокойствие, модерна инфраструктура и близост до морския бряг. Локацията осигурява бърз и удобен достъп до центъра на града, училища, паркове, лечебни заведения и множество удобства за активен и комфортен начин на живот.

Сградата е в процес на строителство, с планирано завършване през 2027 година. Апартаментът ще бъде издаден по БДС, на тапа, което дава възможност за индивидуално довършване и интериорни решения според вкуса на новия собственик. Предвидена е и възможност за закупуване на паркомясто или гараж, осигуряващи допълнително удобство и сигурност.

Този имот представлява изключителна възможност за покупка на просторно и престижно жилище в утвърден район на Бургас. Съчетавайки самостоятелен етаж, модерна архитектура, стратегическа локация и висок инвестиционен потенциал, апартаментът е отличен избор както за семейно жилище от висок клас, така и за инвестиция с дългосрочна стойност.

Оферта № 38512

Агенцията съдейства за отпускане на банков кредит

Разположение на картата